Rented
$3,950/MO
- 4 Beds
- 2.5 Baths
- 2400 Sq. Ft.
Property Summary
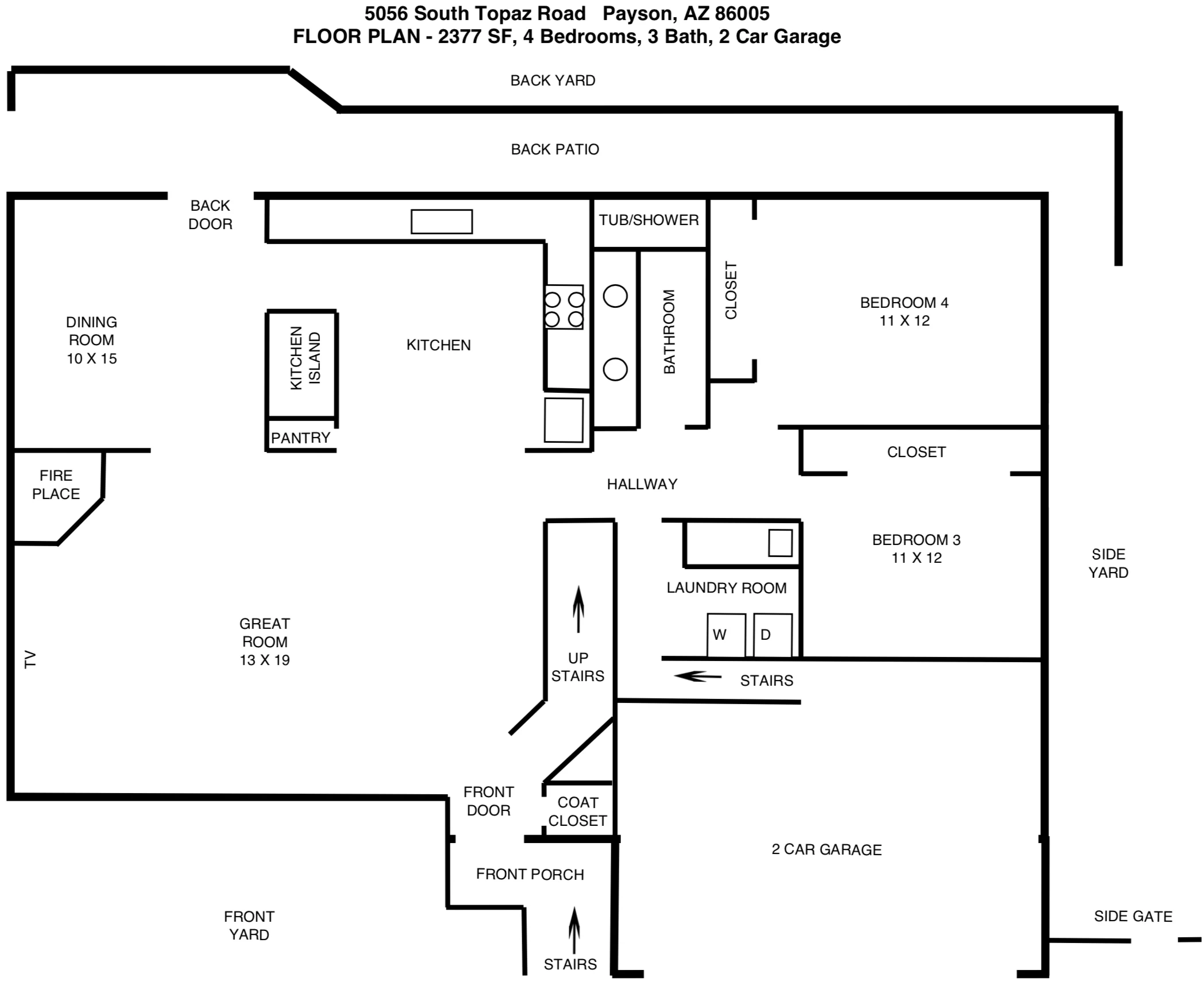
AVAILABLE 6/15/2026. Unfurnished. Welcome to Flagstaff in Northern Arizona. Flagstaff sits at 7000ft and is home of SnowBowl Ski Resort and Northern Arizona University. The home was built in 2005, is 2400 square feet and was completely updated with mechanicals and finishes in 2018 (see photos). There are 4 bedrooms, 3 full baths and a 2 car garage with additional driveway parking, (please see enclosed floor plan in photo section). The home is located in the upscale community of North Slope in Ponderosa Trails which offers a quiet, safe, family friendly environment, close to hiking/biking trails (see map in photo section), entertainment, restaurants, shopping and is just a six minute drive from NAU. We also have great neighbors who are friendly, have kids and are always willing to help when needed.
The home has all SS appliances and full size high capacity washer and gas dryer included with the home. Newer updates include a new metal roof and gutters 2023, and a new electric SS stove 2023 and complete back yard fencing with gates in 2025. Downstairs Flooring is all tile with newer carpet in the upstairs bedrooms. The home is very open and bright with high entry ceiling and offers a relaxing feel to unwind from work. The great room has a gas fireplace with heated blower into the great room and dining room. The home is completely hardwired for dedicated fast internet as well as WIFI. Additional security includes, a metal security front door and CCTV cameras around the home that can be monitored 24/7. Tenants will have the only access or the system can be de-activated if requested. The home also has Central AC and Heat as well as in floor radiant heating which are both heated by gas. There is also snow melt radiant heating for the front steps and front driveway for safety and enjoyability during heavy winter storms (see photos).
The garage has an insulated garage door, a separate key pad for secure entry as well as additional storage, bike rack, work bench and whole house salt water softener. The front and back yards are watered on a self timer. This is a worry free home that provides a family with a safe and friendly community. Thank you for considering us for your next home. Tenants understand the owner is an active licensed real estate agent in Arizona.
Tentants must show they make 2.5x rents and a minimum credit score of 680+ to qualify. Owner/Property Manager provides application and writes lease paperwork. $50 non refundable application fee for each tenant over the age of 18. $200 Refundable deposit cleaning fee, $300 Non Refundable Cleaning Fee, First and last month rents due prior to move in, $2500 Refundable security Deposit. $2000 Earnest Money deposit to hold home once lease signed. EM will go toward move in costs. Tenants responsible for all utilities. All utilities to be turned on prior to occupancy. $400 Non Refundable Pet fee. Owners will consider 1 small dog under 25lbs.
ABOUT THE LEASE AND OWNERS: Landlords are owners/property managers. We are experienced as both landlords and tenants. We are prompt, communicate well and easy to work with. We will screen every applicant over 18 years old with background, security and credit check. Occupancy Limit: 1 family (4 persons) No Subletting, Required to follow all community CCnRs, Renters insurance required., Showing Instructions: Current tenants agree to show home if they’re available. Please try to be flexible for showings. State issued photo IDs required unless accompanied by realtor, Broker Notes: Owner/Agent, Disclosures: Agency Discl Req, Seller Discl Avail, Rental Disc Avail, Vicinity of an Airport. Tenants understand the owner is an active licensed real estate agent in Arizona.
Overview
Basic Information
| Property Status | RENTED |
| MLS ID | 7007256 |
| Property Type | Single Family |
| Style of Architecture | Ranch |
| Year Built | 2005 |
Luxury Features & Amenities
Area & Lot
| Neighborhood | North Slope in Ponderosa Trails |
| Architecture Styles | Ranch |
| Lot Size | 7184 |
Interior Excellence
| Stories | 2 |
| Garage Spaces | 2 |
| Water Source | City Water |
| Pool | None |
| Roof | Metal |
| Lot Features | |
| Parking | 2 Car Garage with extra driveway off street parking |
| Heat Type | Natural Gas |
| Air Conditioning Features | Central AC/Heat |
| Sewer | PUBLIC |
| HOA Amenities | Community Park, Walking Paths |
| Security Features | CCTV System and front security door |
| Other Exterior Features | Back Patio |
School Information
| Elementary School | Manuel DeMiguel Elementary School |
| Middle School | Mount Elden Middle School |
| High School | Flagstaff High School |
| School District | Flagstaff Unified District |
Are you interested?
Schedule a Tour
Mortgage Calculator
Use this mortgage calculator to estimate your monthly payment based on home price, down payment, interest rate, and loan term. Adjust the inputs to see how different factors affect your estimated cost.
Mortgage Calculator
Monthly Payment (Est.)
$0Calculator powered by Showcase IDX, a Constellation1 Company. Copyright ©2026 Information is deemed reliable but not guaranteed.
Discover PHOENIX HOMES
Explore Affordable Luxury Living
Questions?
Give us a call today and let’s get started discussing how to best reach your goals.































